Skip to content

Located on a brownfield site in North Finchley, requiring demolition of existing industrial units and careful management of site constraints, including retaining walls, tight boundary conditions, and significant level changes. Brookbanks provided comprehensive structural engineering services, from design conception through to construction, overcoming complex site challenges and delivering a functional, efficient residential development. This residential scheme consisted of 53 one-bedroom, 59 two-bedroom flats, 27 three-bedroom and 10 four-bedroom houses.

Our Role

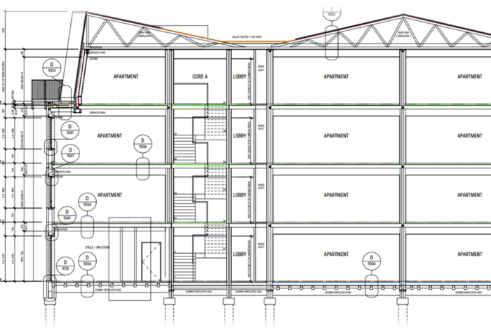
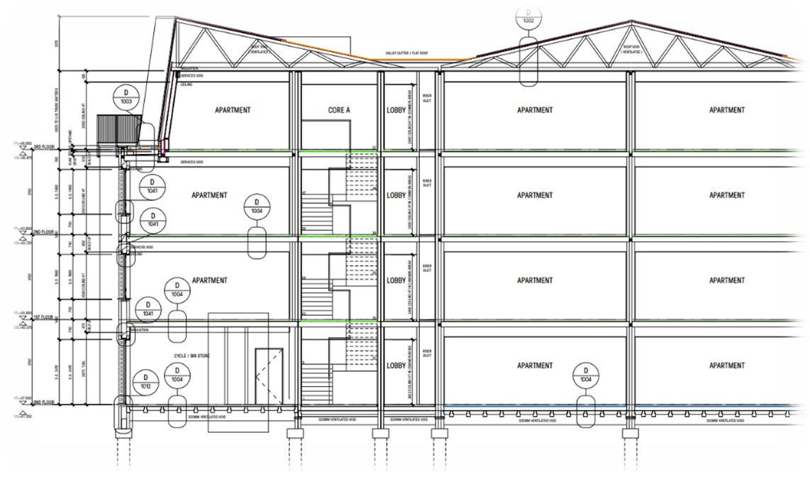
Structural design includes a 4-storey load-bearing masonry structure, supported by reinforced concrete (RC) piles and ground beams, with precast floor spans and wind load considerations integrated into masonry design calculations.

Brookbanks provided services including demolition advice together with Civil and Structural design for the replacement residential scheme. The buildings were constructed as load bearing masonry with pre-cast concrete floors and piled foundations. The project involved some careful detailing around there perimeter to ensure the new foundations did not disturb neighbouring properties.

The Outcome

Steel beams and frames were incorporated to accommodate floor A carefully planned Movement Joint strategy was adopted to maintain structural integrity while achieving the desired aesthetic appearance of the development.
A stepped ground beam and pile scheme was developed to address level changes across the site, ensuring structural stability and efficient load distribution.

R&S provided comprehensive structural engineering services, from design conception through to construction, overcoming complex site challenges and delivering a functional, efficient residential development.

Project Highlights

  • Client: Taylor Wimpy
  • Architect: BM3 Architecture
  • Value: £30million
  • Our services: Structural Design, Civils Layout & Drainage Design

Sectors

Key Team Members

Chris Vivian, Group Director at Brookbanks
Group Director for Structural Engineering

Chris Vivian

Read Profile
Structural Engineer

Rob Houlston

Read Profile
Ryan Meade, Head of Civil Engineering at Brookbanks
Head of Civil Engineering

Ryan Meade

Read Profile

Related Case Studies